







The following updated application has been received by Audlem Parish Council:
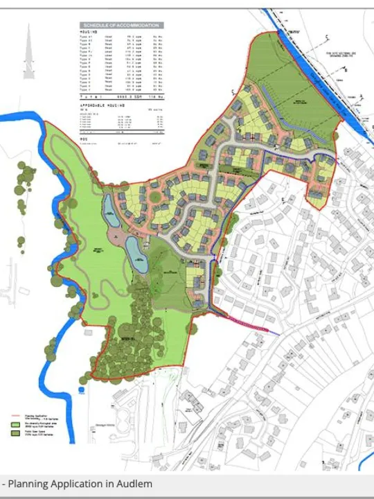
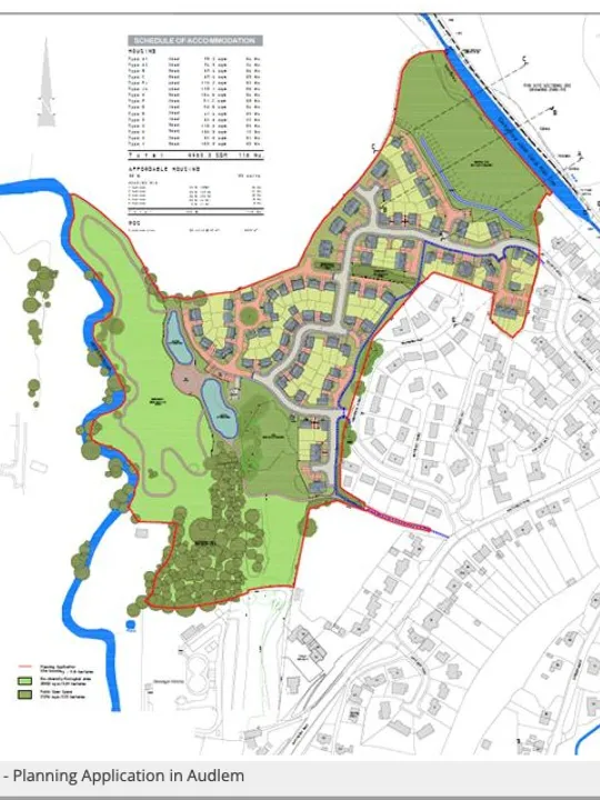
25/2194/OUT
Outline Planning Application for a residential development of 127 dwellings (Inc. 38 affordable dwellings) with access included on land off Moorsfield Avenue & Tollgate Drive, Audlem.
Comments on the application need to be submitted by 4th April. The planning application will be considered by the Parish Council at the meeting on Thursday 19th March.
An updated copy of the agenda can be seen here.
AudlemOnline is powered by our active community.
Please send us your news and views using the button below:
Email: editor@audlem.org