AudlemOnline Logo

Muller application hearing

30 Sep 2025 6:06am: Webteam
Back homeNewsMuller application hearing
Moorsfield 1

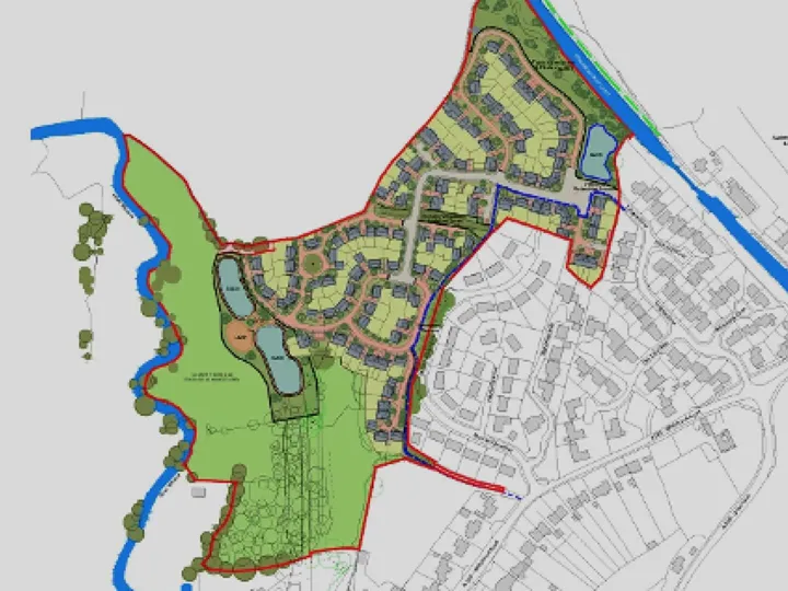
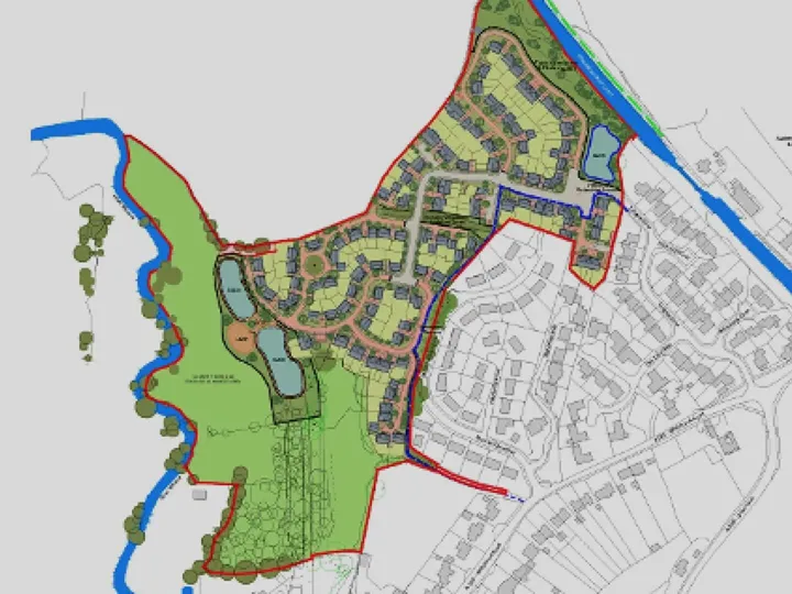
Planning application 25/2194

The date of the hearing for the application for outline planning permission for the Muller development near Moorsfield Avenue has been set for November 19th.

Get In Touch

AudlemOnline is powered by our active community.

Please send us your news and views using the button below:

Village Map

© 2005-2026 AudlemOnline