







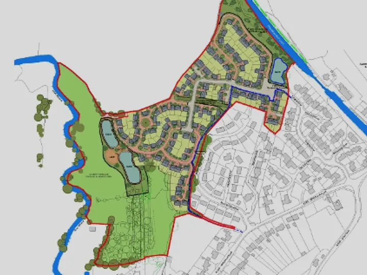
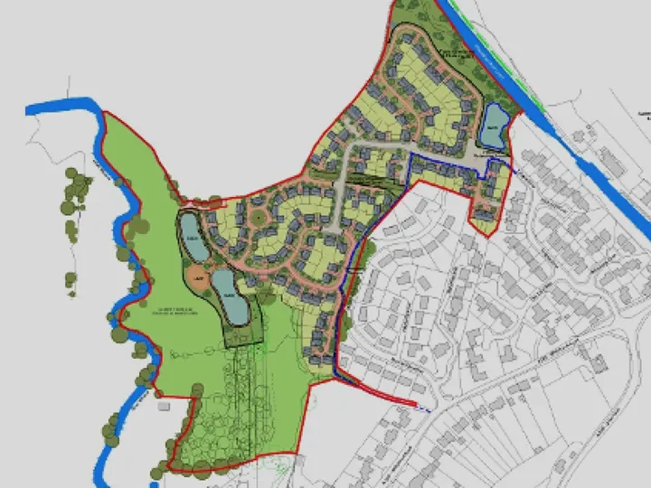
Rachel Bailey (Audlem Ward Councillor) has informed us that she has received confirmation from Cheshire East Planning that the Moorsfield application, number 25/2194/OUT, will not be considered at the Southern Planning Board meeting on November 19th.
She understands that the applicant is going to submit additional information, following which she is assured that there will be a re-consultation and as such it is currently not possible to give an indication of a committee date.
AudlemOnline is powered by our active community.
Please send us your news and views using the button below:
Email: editor@audlem.org